Porzione di bifamiliare in vendita

San Giovanni Al Natisone, Viale delle Scuole
€ 256.000
4 locali 4 locali
247 Mq 247 Mq
2 bagni 2 bagni

Porzione di bifamiliare in vendita

San Giovanni Al Natisone, Viale delle Scuole

Descrizione annuncio

Tecnocasa la più grande rete di intermediazione in Europa con 2867 punti vendita in Italia e 4099 nel mondo vi propone:

L’abitazione, accostata da un solo lato, è stata concepita come nuova costruzione a utilizzo di un familiare ed è stata realizzata negli anni ’80, accogliendo verso la fine degli anni ’90 una importante personalizzazione sia negli impianti che nelle finiture.

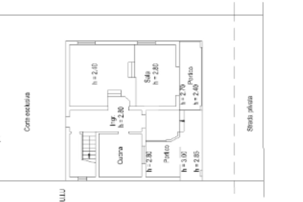
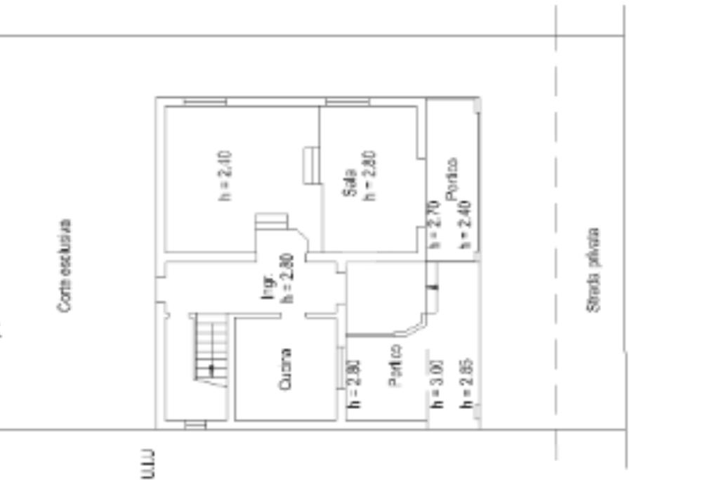
Si sviluppa su due livelli abitativi; l’ingresso principale accoglie l’accesso ai due ambienti principali della zona giorno.

La cucina, che apre sulla sinistra, ha dimensioni apprezzabili, il soggiorno è stato strutturato a livelli sfalsati con una prima zona leggermente rialzata che accoglie la sala da pranzo e la zona giorno con il caminetto che si estende verso le grandi finestre rivolte a sud.

Le strutture di armadiature in legno fanno da antibagno verso il servizio al piano che lo rende così completamente autonomo.

Le scale ampie accedono alla zona notte; qui trovano spazio una grandissima camera padronale, una camera doppia e una singola, prevalentemente utilizzata come studio, oltre al grande bagno con doppio lavello.

Al piano è presente anche una botola che accede a una soffitta di ispezione al tetto.

La maggior parte dei pavimenti è in legno; gli infissi sono in vetrocamera doppio, provvisti di zanzariere e tapparelle.

Il riscaldamento della casa è alimentato da una caldaia a metano di recente sostituzione e sono presente anche pannelli fotovoltaici.

Lo spazio verde si apre nella parte retrostante, creando così un luogo immerso nella privacy e nel silenzio di cui godere nelle giornate più calde.

La villetta risulta essere già abitabile, ideale per una famiglia che cerca tranquillità godendo di spazi ormai unici e quasi introvabili.

Mostra tutto

Nelle vicinanze

Trasporto pubblico Trasporto pubblico
San Giovanni al Natisone
San Giovanni al Natisone
180 m
Manzano
Manzano
2,3 Km
Trasporto pubblico
410 m
SAF
SAF
2,4 Km
Ricariche auto elettriche Ricariche auto elettriche
San Giovanni al Natisone Kuchl | EnelX
480 m
Scuole Scuole
Divisione Julia
1,7 Km
Farmacia Farmacia
Farmacia Paviotti Viviana
140 m
Farmacia Brusutti
2,0 Km
Farmacia Sbuelz
2,2 Km
Farmacia di Villanova
2,7 Km
Supermercati Supermercati
Lidl
590 m
Eurospin San Giovanni al N.
1,0 Km
Dpiù
1,1 Km
Famila
1,6 Km
Supermercati
1,8 Km
Negozi Negozi
Il fornaio
2,1 Km
Panificio Venuti Marco
2,2 Km
Bar Bar
Snack Bar Grisù
220 m
La Corte del Becco Fino
2,0 Km
Ristoranti Ristoranti
Osteria Cadibon Weinstube
440 m
Ristorante Campiello Hotel
510 m
Ristorante Pizzeria Zaliclò
620 m
Ristorante Cinese Asia
740 m
Agriturismo Shangri-La
1,3 Km
Mostra tutto

Caratteristiche

Rif.:
61193362
Piano:
2 di 2 (Piano su più livelli)
Box:
1
Terrazzi:
1
Camere da letto:
3
Arredamento:
Parziale
Mostra tutto
Prezzo Prezzo
€ 256.000
Rata mutuo Rata mutuo
€ 1.207 / mese
Spese annue Spese annue
€ 0
Proponi il tuo prezzoProponi il tuo prezzo
Immobile valutato con T·Valuta

Classe Energetica

F
F
F
F
F
F
F
F
F
EP globale non rinnovabile:
111.00 kW h/m² anno
EP globale rinnovabile:
11.00 kW h/m² anno
EP invernale del fabbricato:
EP estiva del fabbricato:
Anno di costruzione:
1980
Riscaldamento:
Autonomo
Tipo impianto:
A radiatori
Tipo alimentazione:
Metano

Ti interessa visionare l'immobile?

Fissa un appuntamento  Fissa un appuntamento

Richiedi informazioni

Clicca su Leggi per aprire l'informativa
* Questi campi sono obbligatori

Calcola il tuo mutuo

Semplice e senza impegno
Anticipo

( % )
Mutuo

( % )

pochi semplici passi

inserisci i tuoi dati
Questionario completato
Grazie per aver richiesto un appuntamento senza impegno con un nostro Consulente del Credito e Assicurativo.

Hai inserito correttamente tutti i dati necessari e a breve riceverai una e-mail con un link da convalidare per inviare i tuoi dati.
Affiliato
Friuli Orientale Srl
Via Divisione Julia, 12 33042 Buttrio (UD)

Il nostro staff


  • Tiziana Tremamunno
    Affiliata

  • Sara Bortolin
    Coordinatrice

  • Jacopo Aglì
    Collaboratore

  • Gennaro Iavazzo
    Collaboratore
Via Divisione Julia, 12 33042 Buttrio (UD)
Zona: Buttrio-Manzano-Pradamano-San Giovanni al Natisone-Corno di Rosazzo
Mostra su mappa
Orari: lunedì-venerdì dalle 9 alle 13 e dalle 15 alle 19.30. Sabato dalle 9.30 alle 13. Il pomeriggio del sabato e la domenica siamo a disposizione su appuntamento.
Affiliato
Friuli Orientale Srl
Via Divisione Julia, 12 33042 Buttrio (UD)

2026 Tecnocasa Franchising S.p.A. - P. IVA 08365160152 - Via Monte Bianco 60/A 20089 Rozzano (MI). Ogni agenzia ha un proprio titolare ed è autonoma. Privacy policy | Policy utilizzo | Cookie policy