Laboratorio in affitto

San Giovanni Al Natisone, via Palmarina
€ 500 / mese
3 locali 3 locali
120 Mq 120 Mq
2 bagni 2 bagni

Laboratorio in affitto

San Giovanni Al Natisone, via Palmarina

Descrizione annuncio

Tecnocasa la più grande rete di intermediazione in Europa con 2867 punti vendita in Italia e 4099 nel mondo vi propone:

L’immobile è ubicato a San Giovanni al Natisone e più precisamente in una delle strade principali del paese, il che la rende molto utilizzata durante il giorno.

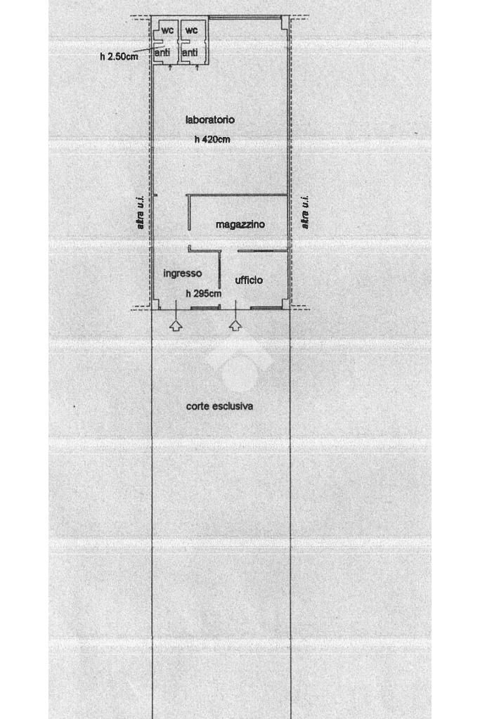
Il locale commerciale si sviluppa al primo ed unico piano di un immobile edificato negli anni ’70.

Conta una superficie di circa 110 mq e nella parte anteriore trovano spazio dei posti auto adatti a servire la clientela.

Entrati nella struttura ci troviamo sulla destra due comodi uffici dotati già di mobilio.

Un’entrata introduce all’ampio laboratorio con annessi i due servizi.

Il locale è munito di servizio di climatizzazione e riscaldamento con termoconvettori.

Le spese condominiali sono già comprese nel prezzo.

Mostra tutto

Nelle vicinanze

Trasporto pubblico Trasporto pubblico
San Giovanni al Natisone
San Giovanni al Natisone
1,5 Km
Trasporto pubblico
770 m
Ricariche auto elettriche Ricariche auto elettriche
San Giovanni al Natisone Kuchl | EnelX
2,0 Km
Scuole Scuole
Divisione Julia
2,8 Km
Farmacia Farmacia
Farmacia Paviotti Viviana
1,6 Km
Farmacia di Villanova
2,0 Km
Supermercati Supermercati
Eurospin San Giovanni al N.
800 m
Dpiù
840 m
Lidl
1,0 Km
Supermercati
2,9 Km
Bar Bar
Snack Bar Grisù
1,4 Km
La Corte del Becco Fino
2,9 Km
Ristoranti Ristoranti
Ristorante Cinese Asia
910 m
Ristorante La Campagnola
940 m
Ristorante Campiello Hotel
1,0 Km
Agriturismo Shangri-La
1,1 Km
Osteria Cadibon Weinstube
1,2 Km
Mostra tutto

Caratteristiche

Rif.:
61150812
Piano:
1 di 1 (Piano terra)
Condizionamento:
Autonomo
Ascensore:
No
Riscaldamento:
Autonomo
Libero:
Mostra tutto
Prezzo Prezzo
€ 500 / mese
Spese annue Spese annue
€ 0

Classe Energetica

C
C
C
C
C
C
C
C
C
EP globale non rinnovabile:
111.00 kW h/m² anno
EP globale rinnovabile:
11.00 kW h/m² anno
EP invernale del fabbricato:
EP estiva del fabbricato:
Anno di costruzione:
1996
Riscaldamento:
Autonomo
Tipo impianto:
A radiatori
Tipo alimentazione:
Metano

Ti interessa visionare l'immobile?

Fissa un appuntamento  Fissa un appuntamento

Richiedi informazioni

Clicca su Leggi per aprire l'informativa
* Questi campi sono obbligatori
Affiliato
Friuli Orientale Srl
Via Divisione Julia, 12 33042 Buttrio (UD)

Il nostro staff


  • Tiziana Tremamunno
    Affiliata

  • Sara Bortolin
    Coordinatrice

  • Jacopo Aglì
    Collaboratore
Via Divisione Julia, 12 33042 Buttrio (UD)
Zona: Buttrio-Manzano-Pradamano-San Giovanni al Natisone-Corno di Rosazzo
Mostra su mappa
Orari: lunedì-venerdì dalle 9 alle 13 e dalle 15 alle 19.30. Sabato dalle 9.30 alle 13. Il pomeriggio del sabato e la domenica siamo a disposizione su appuntamento.
Affiliato
Friuli Orientale Srl
Via Divisione Julia, 12 33042 Buttrio (UD)

2025 Tecnocasa Franchising S.p.A. - P. IVA 08365160152 - Via Monte Bianco 60/A 20089 Rozzano (MI). Ogni agenzia ha un proprio titolare ed è autonoma. Privacy policy | Policy utilizzo | Cookie policy